ポートレートモード(縦置き)表示でご覧ください。

左:外観完成予想CG/右:現地周辺の並木道

左:外観完成予想CG/右:現地周辺の並木道

DESIGN

DESIGN for LIFE
街並みを標す、ひときわの存在。
CONCEPT
街の要所に立地するに
ふさわしい存在感を追求

「ウィルローズ光が丘」は、都営大江戸線「光が丘」駅から続く美しい並木道を進んだ先に誕生します。落ち着いた場所にありながらも、存在が際立つ土地。ここに住む方の人生をデザインする個性あふれる佇まいを目指しました。

AMBITION
街並みとの統一感を
デザインした新たなシンボル

建築デザインには角地という立地特性を活かし強い印象を与えるインパクトと、周囲の環境との調和の両立を追求しています。外観には縦格子を大胆に取り入れ、街路樹の風景と連動するようなデザインを施しました。街並みとの一体感を大切にしながらも、個性が光る外観によって、この場所に新たな魅力を生み出しています。

FACADE
外観完成予想CG

街並みのリズムを継承し、
その洗練をスタイルとして

光が丘のなかでも視認性の高い角地の立地特性を生かして、周囲に調和しながら際立つ存在として誕生する「ウィルローズ光が丘」。美しく整備された光が丘にふさわしく、街路樹が生み出すリズムを継承したデザイン。外観は、緑豊かな街の風景を「額縁」に見立て、存在感を創出。1階と上層部を分け、2・3階、4・5階を2層ごとにまとめることで、縦格子の軽やかさを際立たせるバランスに仕上げています。ここに住む方に、洗練された光輝く暮らしを実現します。

ENTRANCE
エントランスアプローチ完成予想CG

住まう方を迎え入れるにふさわしい
エントランスデザイン

エントランスアプローチは、シンボル性を重視したデザインを採用。三角形の敷地の頂点に位置するエントランスは、駅からのスムーズな動線と交差点からの優れた視認性を意識した設計で、住まう方を迎え入れる「建物の顔」として象徴的な存在となります。1階部分には格子を使わず、重厚感のある素材で仕上げ、建物全体を支える安定感を与えるデザインとしました。エントランスから先には、ガラス張りの壁に彩られた開放感あふれるエントランスホールが続き、エレベーターホールへと至ります。奥行きのあるこのホールを進むほどに気持ちは寛ぎへと切り替わっていきます。

MATERIAL

LANDSCAPE

敷地形状を最大限に生かし、
愛着が深まる邸宅を。
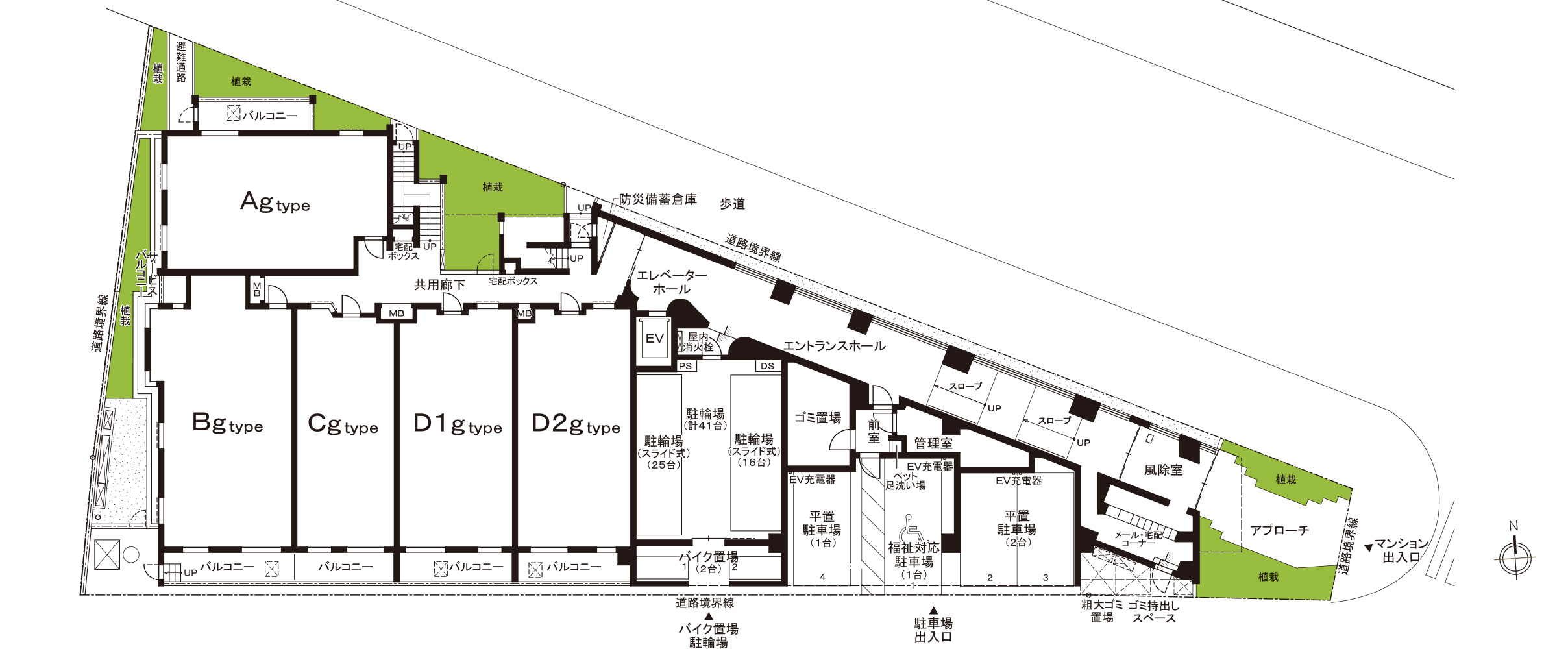
敷地配置図
敷地配置図
  1. エントランスアプローチ

    エントランスには、緑の潤いを添えたアプローチを設置。歩みを進めるごとに、駅前の賑わいからプライベートの安らぎへと切り替えてゆく開放感を演出しました。

  2. 駐輪場

    約120%分の駐輪場を設置。セキュリティに守られた建物内1階なので、大切な自転車が風雨にさらされる心配もなく、防犯性にも優れています。

  3. ゴミ置き場

    時間や曜日を気にせず、24時間ゴミ出しが可能です。建物内に置き場があるため夜間も安心。お帰りの遅い方など、多様なライフスタイルに対応します。

  4. ペット足洗い場

    散歩帰りのペットの足洗いに利用できるよう、敷地内に足洗い場を設置しました。

PLANTING

豊かな植栽が、街角を彩る

四季の移ろいとともに花が咲き、葉が色づく。街角に面したエントランスアプローチを中心に、様々な植栽を採用しました。ここに住まう方、そしてこの街角を通る地域へも自然景観を提供します。四季の移ろいとともに、美しい想い出が深まっていきます。

イロハモミジ
イロハモミジ
エゴノキ
エゴノキ
アセビ
アセビ
ハイノキ
ハイノキ
ソヨゴ
ソヨゴ
ノムラモミジ
ノムラモミジ
all image photo

DESIGNER

長谷建築設計事務所
福田 充
Mitsuru Fukuda

元来、都市と建築は切り離せない関係にあり、街並みを意識した建築計画はどの計画においても重要です。長谷建築設計事務所は計画地域を十分に調査、分析を⾏い、その地域から導き出されるイメージを⼤切にし、グローバルな価値観との関連を図っていくことによって、デザイン性はもとより、周囲の環境に調和した安全でより快適な建築空間の創造を追求していくことで社会に貢献しています。

オースピス水道橋
オースピス水道橋(2008年竣工)
ウィルローズ月島
ウィルローズ月島(2010年竣工)
SANWAすずらんBldg.
SANWAすずらんBldg.
(2024年竣工)
SANWAすずらんBldg.
SANWAすずらんBldg.
(2024年竣工)

※掲載の完成予想CGは、計画段階の設計図を基に描き起こしたものであり、実際とは異なります。また、家具・調度品、形状・色・色柄等は変更になる場合があります。なお、外観の細部・設備機器・配管類及び電柱・架線・道路標識・周辺建物等は一部省略または簡略化しております。※PCモニター等、ご覧になる環境により色合いが異なります。※植栽はすべてイメージであり、実際のものとは異なります。また、樹種等は計画段階のものであり、変更になる場合があります。※掲載の図面は、計画段階の設計図を基に描いたものであり、今後変更になる場合があります。詳細は最新の図面集をご確認ください。※image記載のある写真は全てイメージです。